
调压阀无需外加能源,利用被调介质自身能量为动力源。自动控制阀门介质流量,使阀后压力保持恒定的压力稳定装置。现已广泛应用于连续送气的天然气采输,城市煤气以及冶金、石油、化工等工业生产部门。
该阀特点:控制精度高,可比一般ZZY型直接操作型调压阀高一倍左右。调节压差比大(如阀前0.8MPa、阀后0.001MPA)特别适合微压气体控制。
压力设定在指挥器上实现,因而方便、快捷、省力省时可在运行状态下连续设定。
| 公称通径mm | 20 | 25 | 40 | 50 | 80 | 100 | 150 | ||||||
| 阀座直径mm | 6 | 15 | 20 | 25 | 32 | 40 | 50 | 65 | 80 | 100 | 125 | 150 | |
| 额定流量系数Kv | 3.2 | 5 | 8 | 10 | 20 | 32 | 50 | 80 | 100 | 160 | 250 | 400 | |
| 压力设定值范围Kpa | 0.5-7 | 5—20 | 15-50 | 30-150 | |||||||||
| 公称压力PN(MPa) | 1.0 | 1.6 | |||||||||||
| 被调介质温度(℃) | -20 | -90 | |||||||||||
| 流量特性 | 快开 | ||||||||||||
| 调节精度(%) | ≤3 | ||||||||||||
| 执行机构薄膜有效面积(cm) | 200 | 280 | 400 | ||||||||||
| 允许泄漏量(L/h) | 符合ANSIB16.104-1978 IV级 | ||||||||||||
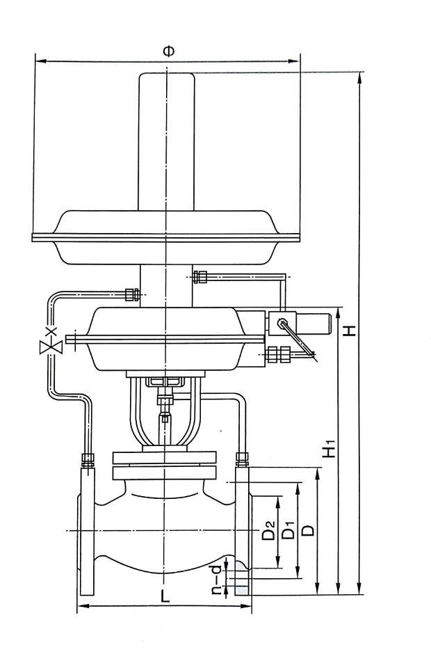
| 公称通径DN(mm) | 法兰端面距L | H | H₁ | ∅ | D | D₁ | D₂ | n-d |
| 20 | 150 | 610 | 330 | 310 | 105 | 75 | 56 | 4—14 |
| 25 | 160 | 610 | 330 | 310 | 115 | 85 | 65 | 4—14 |
| 32 | 180 | 630 | 350 | 310 | 140 | 100 | 76 | 4—18 |
| 40 | 200 | 630 | 350 | 310 | 150 | 110 | 84 | 4—18 |
| 50 | 230 | 640 | 360 | 310 | 165 | 125 | 99 | 4—18 |
| 65 | 290 | 710 | 430 | 310 | 185 | 145 | 118 | 4—18 |
| 80 | 310 | 720 | 440 | 310 | 200 | 160 | 132 | 8—18 |
| 100 | 350 | 730 | 450 | 310 | 220 | 180 | 156 | 8—18 |
| 125 | 400 | 800 | 520 | 310 | 250 | 210 | 184 | 8—18 |
| 150 | 480 | 930 | 650 | 310 | 285 | 240 | 211 | 8—22 |

订货须知:订货时请填写《规格书》或注明一下内容:
1.产品型号
2.公称压力
3.公称通径、额定流量系数Kv
4.信号压力、弹簧范围
5.流量特性
6.阀的开关方式
7.介质工作温度范围
8.阀体、阀芯材料
9.是否带附件,说明附件型号
10.是否有其他特殊要求
友情链接:没有资料